918 Victoria Hills Dr N, DeLand, FL 32724
Toggle Navigation
Details
Images
Floor Plans
3D Tour
Map
918 Victoria Hills Dr N
DeLand, FL 32724
Scroll to Content
Details
$526,900
3 Bedrooms
1 Bathrooms
2,828 Sq/ft
Built in 2015
Images
Images
Front
Interior
Back
Drone
Slideshow
Photo Grid
Hide
Previous
Next
Show more
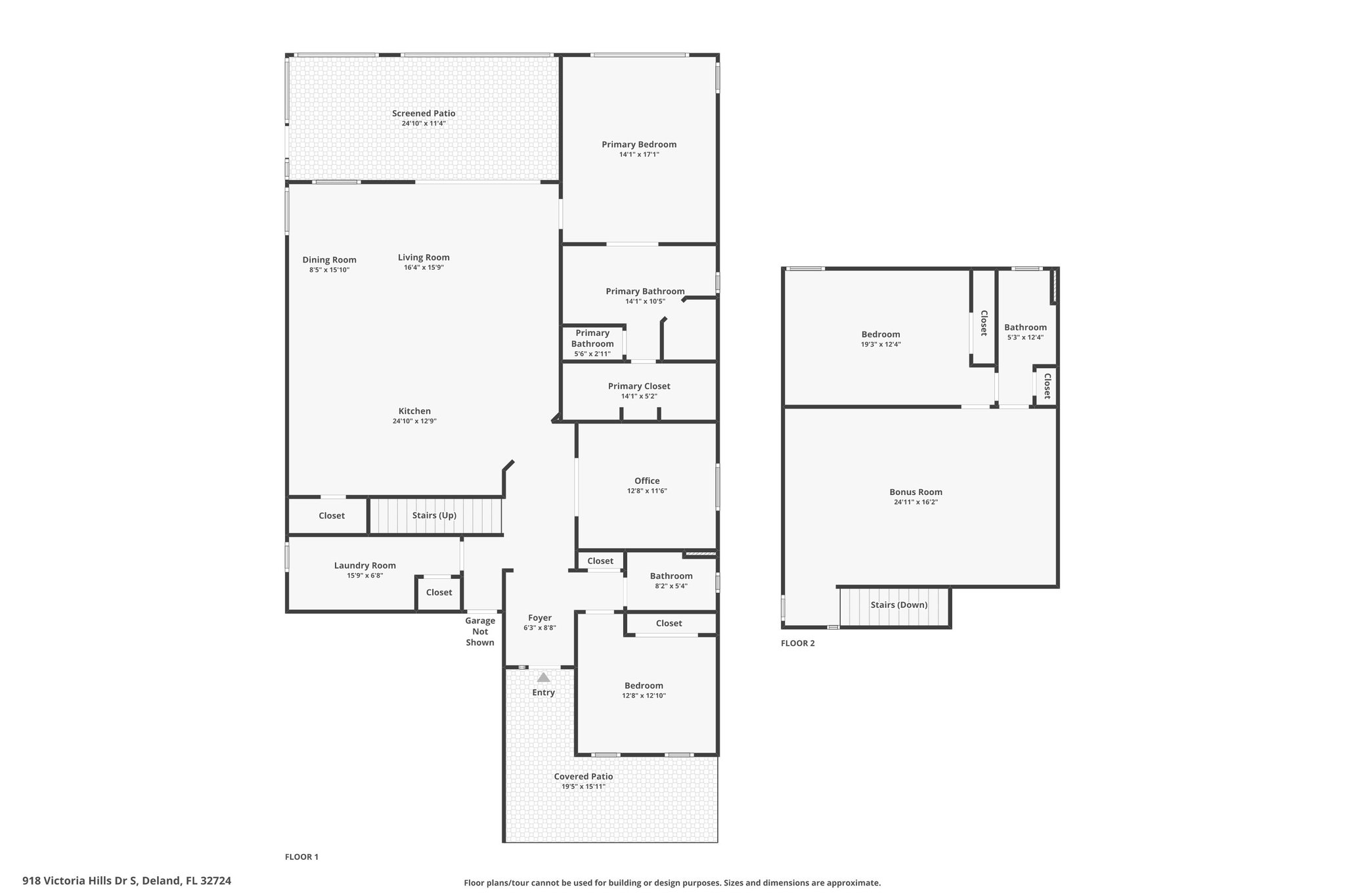
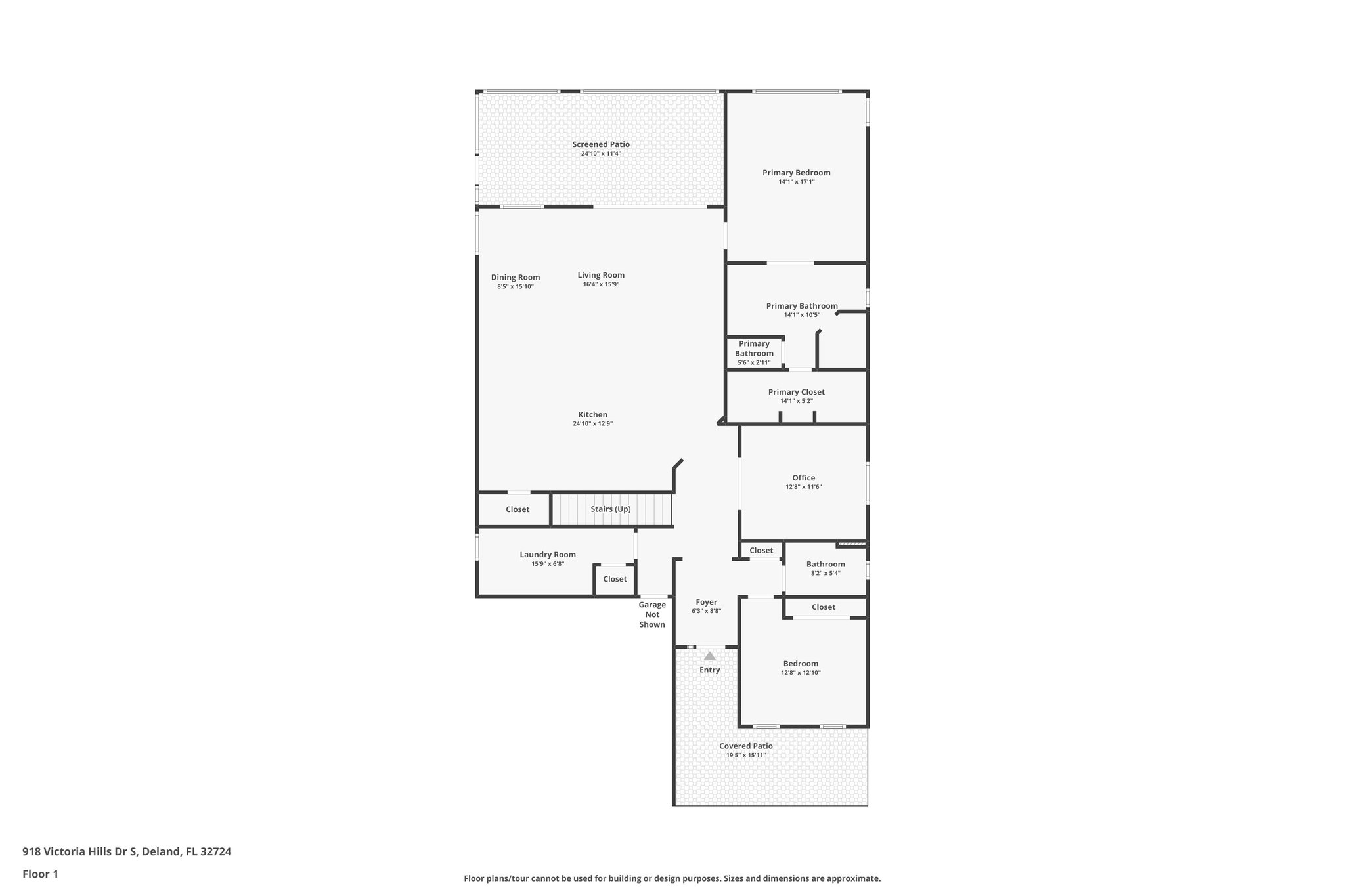
Floor Plans
Slideshow
Photo Grid
Hide
Previous
Next
3D Tour