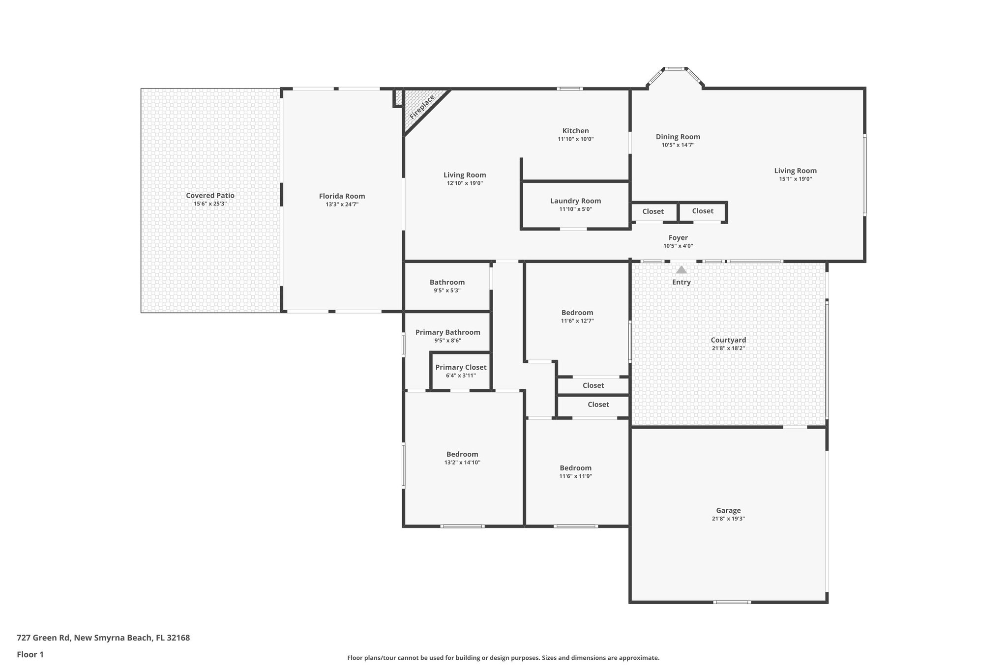
727 Green Rd, New Smyrna Beach, FL 32168
Toggle Navigation
Images
Videos
Floor Plans
3D Tour
Map
727 Green Rd
New Smyrna Beach, FL 32168
Scroll to Content
Images
Exterior
Interior
Slideshow
Photo Grid
Hide
Previous
Next
Show more
Videos
Floor Plans
Slideshow
Photo Grid
Hide
Previous
Next
3D Tour