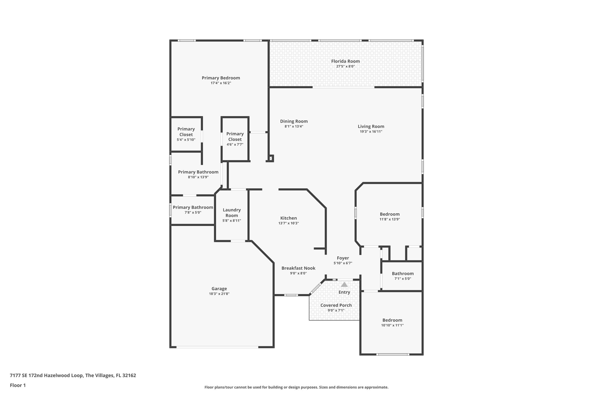
7177 SE 172nd Hazelwood Loop, The Villages, FL 32162
Toggle Navigation
Images
Videos
Floor Plans
3D Tour
Map
7177 SE 172nd Hazelwood Loop
The Villages, FL 32162
Scroll to Content
Images
Slideshow
Photo Grid
Hide
Previous
Next
Show more
Videos
Floor Plans
Slideshow
Photo Grid
Hide
Previous
Next
3D Tour