2426 SAINT AUGUSTINE BLVD, HAINES CITY, FL 33844

Scroll to Content

Details

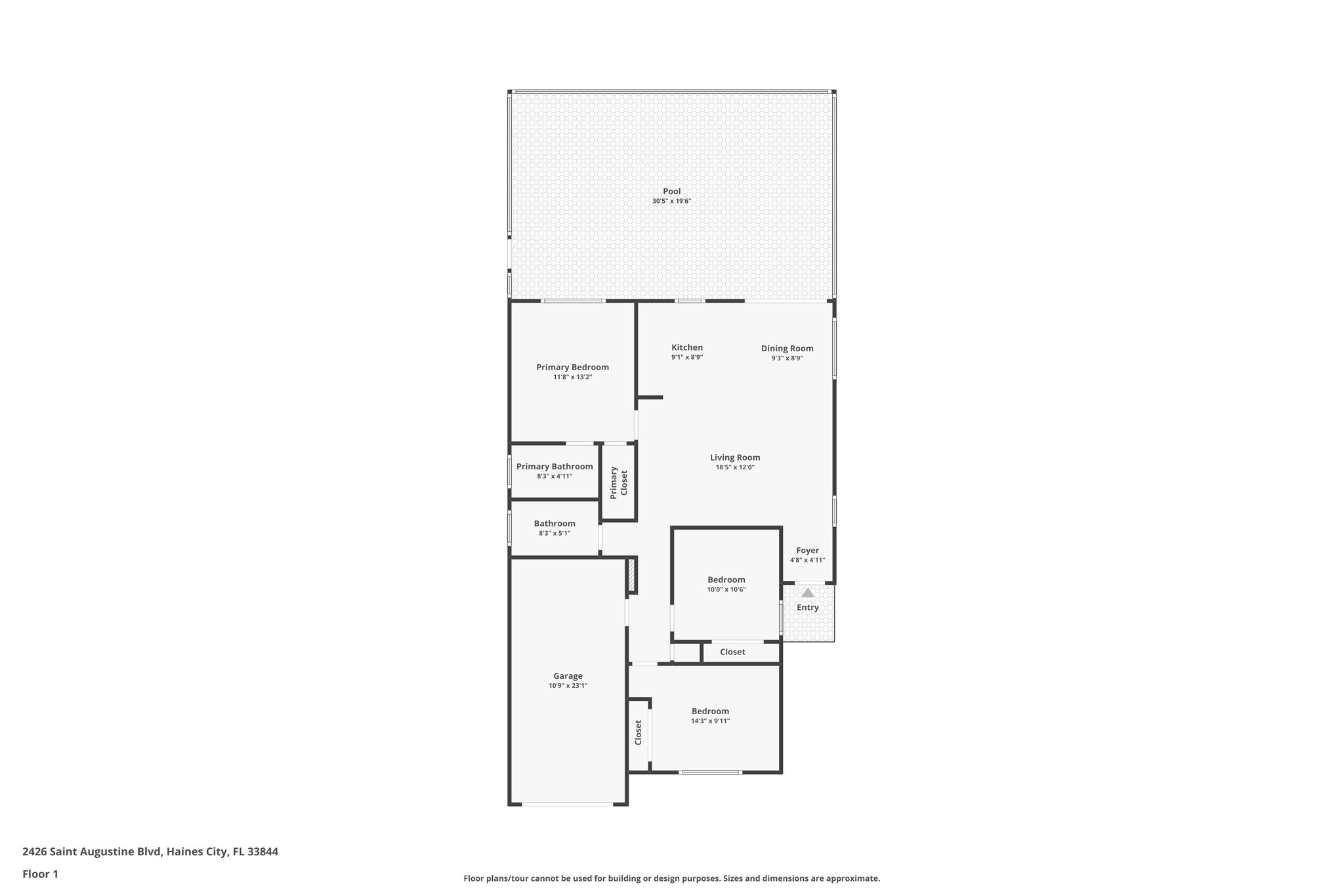
Set on the fairway of an 18-hole championship golf course within the guard-gated Southern Dunes community, 2426 St Augustine Blvd offers a rare combination of lifestyle flexibility and long-term value—equally well suited as a primary residence, winter retreat, downsizing option, or income-producing home in one of Haines City’s limited short-term rental–approved communities. Designed for easy single-story living, the home feels open and welcoming with vaulted ceilings, abundant natural light, and a flowing layout that connects the main living spaces to a heated, screened private pool overlooking the golf course. The centrally located kitchen anchors the home with a breakfast bar, generous cabinetry, and updated lighting, opening naturally to the dining and living areas for comfortable everyday living or relaxed entertaining. Sliding glass doors extend the interior to the pool deck, creating a seamless indoor-outdoor experience ideal for enjoying Florida’s beautiful weather and year-round sunshine. The split-bedroom floor plan enhances privacy and functionality, with the primary suite tucked off the main living area and two additional bedrooms with a full bath positioned near the front of the home—well suited for guests, a home office, or flexible rental occupancy. Recent improvements include a new A/C system (July 2025), new garage door opener (2025), updated ceiling fans, refreshed lighting throughout the kitchen and baths, and a newer pool motor (2023), providing added peace of mind for full-time and seasonal ownership. Residents enjoy 24/7 guard-gated security, community pools, tennis courts, playgrounds, and quick access to the Southern Dunes Golf & Country Club clubhouse with on-site dining, all conveniently located near US-27 shopping and dining, Posner Park, and within easy reach of the I-4 corridor for Orlando-area attractions.

  • $305,000
  • 3 Bedrooms
  • 2 Bathrooms
  • 1,142 Sq/ft
  • Lot 0.08 Acres
  • 1 Parking Spots
  • Built in 1999
  • MLS: P4937715

Images

Exterior

Interior

Amenities

Videos

Floor Plans

3D Tour